Stadsveste

Appartementen Grotestraat    

8 appartementen

Locatie

De Stadsveste appartementen worden gebouwd aan de historische straten Grotestraat en Hagengracht in het centrum van Almelo. De appartementen zijn aan beide zijden georienteerd richting de straat, in het midden komt een gemeenschappelijke tuin.

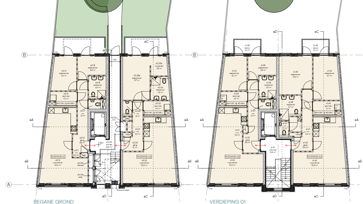
Plattegronden

Gevel tekeningen

Voorkant Grotestraat

Achterkant Grotestraat

“Stijlvol wonen midden in het bruisende hart van Almelo

Schrijf je nu in voor De Stadsveste

Ben je geïnteresseerd in een van de woningen van De Stadsveste? Schrijf je dan nu vrijblijvend in! Door je in te schrijven blijf je op de hoogte van de laatste ontwikkelingen en mis je geen enkele update.

Hoe werkt het?

1. Inschrijving
Vul het formulier in met je contactgegevens. De inschrijving is geheel vrijblijvend en verplicht je tot niets.

2. Bevestiging inschrijving
Na je inschrijving ontvang je van ons een bevestiging per mail. We houden je daarna ook op de hoogte van belangrijke updates.

3. Ontvang projectinformatie
Binnenkort ontvang je ook uitgebreide informatie over het project, zoals de beschikbare woningtypes, plattegronden, en verwachte opleverdata.

4. Woonwensen bespreken
Zodra de verkoop van start gaat, nodigen we je uit voor een gesprek om je woonwensen te bespreken. Dit is het moment om eventuele vragen te stellen en je voorkeuren door te geven.

5. Toewijzing woningen
Na de gesprekken volgt de toewijzingsprocedure. Indien je bent toegewezen aan een woning, ontvang je van ons een reserveringsvoorstel.

6. Ondertekening van de koopovereenkomst
Als je tevreden bent met de toewijzing, zetten we de volgende stap: het tekenen van de koopovereenkomst. Hiermee bevestig je de aankoop van je nieuwe woning.

7. Start van de bouw
Zodra de bouw van jouw nieuwe woning begint, houden we je uiteraard op de hoogte van de voortgang.

De inschrijving is gestart! 

Schrijf je nu in via onderstaand formulier

Ik heb interesse in De Stadsveste

Ik heb interesse in

12 + 5 =

Plaggemars Makelaars

Wierdensestraat 138
7604 BM Almelo

Email

info@plaggemarsmakelaars.nl

Telefoon